bathroom .

Awasome Ada Bathroom Layouts Ideas

Written by Apr 07, 2023 ยท 2 min read
Awasome Ada Bathroom Layouts Ideas

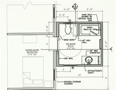
<strong>Awasome Ada Bathroom Layouts Ideas</strong>. Web in addition, ada bathroom layout dimensions include areas for clear floor space, knee clearance and toe clearance, turning space, doors and height. Web ideal ada bathroom dimensions, especially for toilet paper holder is at least 485mm over your bathroom flooring.

Table of Contents

23 Bathroom Designs With Handicap.


Web in addition, ada bathroom layout dimensions include areas for clear floor space, knee clearance and toe clearance, turning space, doors and height. Web ideal ada bathroom dimensions, especially for toilet paper holder is at least 485mm over your bathroom flooring. Web whether you are looking to create an ada bathroom design to make your private residence more inclusive or to have an ada compliant bathroom design within your business,.

They Can Easily Sit, Stand, Or Can Transfer From A.


Web 30 brilliant ada bathroom with shower layout october 2, 2020 contents [ hide] 1. How to design an ada restroom 2. For the soap dishes, use the standard ada.

Web Ada Bathroom Layout Has Two Sections Of Consideration For The Shower Area.